Ventana fija

Inicio / Producto / Perfil de aluminio para construcción / Ventana fija / Perfiles de marco de aluminio 88GD para ventana fija

Descripción del Producto
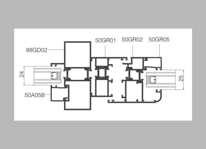
Dibujo de nodo
Dibujo Sencillo
Mensaje de comentarios